School pre-1970

Teachers Behind Covnent
1950s. Back left Miss Mansfield. Centre back Sister (Mother) Aimee. Front right Miss Lichfield. Front centre Sister Eugenie. Photo submitted by Terry Maine.

Mother Orley on Church Steps
c1943. Mother Orley and pupils on St Mary's church steps. Back: Mary and Graham Ginter, Bernard and Kevin Squire. Middle: Dawn March, ?,?,?. Front: Shave.

Christmas Party
c1948. Christmas party with Fr O'Brien. Back: ?, Shave, ?, ?, Peter Norton, Kevin Squire. Front: Norton.

Dancing in the Garden
Dancing display in the convent garden during the convent fete, with Rosemarie Wheeler and Fiona Campbell. 1966.

Ground Floor Plans 60s
Plan, from memory, of the ground floor of St Louis Convent. If you know any different or can add to these plans, please contact us!

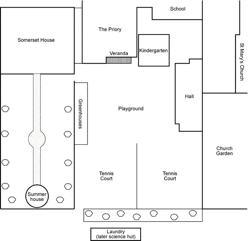
Back Plans 60s
Plan of the back playground and gardens during the 60s. From memory, so not accurate! If you were there later, please tell us what had changed!

Benediction
1930. Benediction behind old church, showing Alfred Squire with the thurible. He subsequently worked on the buiilding of the new Church as an employee of Dunthorn the builders.

Corpus Christi Procession
Early 1960's. Corpus Christi procession in the garden of Somerset House. Includes Sr. Ignatius with shoolchildren who scattered rose petals in front of the Blessed Sacrament.

Pupils on Veranda Steps
1964. Top L-R: Gillie Woodburn, Sandra King, Marilyn Kill.
Middle: Debbie Wade, Pat Nation, Pat Clare.
Bottom: Lynn Harvey, Jane Lunnon, Geanette White, Judy Durdock.

Glastonbury Pilgrimage Procession
1961. Pupils from the convent take part in the Pilgrimage procession.

The Sisters of St Louis, Glastonbury
Early 1960's. The Sisters of St Louis, Glastonbury. From a book commemorating the silver jubilee of St Marys church, Glastonbury.

New Hall Curtains
May 1963. Taken from an article in the local newspaper. Headmistress, Sister Patricia and some senior pupils examine the curtains for the stage in the new hall.

New Hall
May 1963. Taken from an article in the local newspaper. Shows the new school hall from the tennis courts, with St. Mary's church in the background.

Presentation to Sister Patricia
1964. Presentation to Sister Patricia. Left to right: Ann Chislett, Sister Frances Theresa, Sister Patricia, Fr. McNamara, Gill Bush, Sister Mary Peter, Rev. Mother ?, Veronica Weeks. Back row, left to right: ?, Jennifer Brown, Sandra Holley, June Fowler, Mary Gifford, Bernadette Cordery, Miriam Campbell.

Donkey Rides
1964. Donkey rides were part of the annual summer fete, located beside the nuns' laundry room. Now part of Morrisons supermarket. Street road is in the background.

Fete Opening
1964. The Mayor, Cllr Maurice Bush and his wife open the summer fete. Also present are Sister Mary Peter, Sister Patricia and Father McNamara.

Uncle Tom Cobley
1964. Some of the boys dressed up as uncle Tom Cobley and friends, going to Widecombe Fair! Part of the school fete, in the Rose Garden, behind Somerset House.

























